Régularisation Urbanistique à 1000 Bruxelles | Galant Architectes

RÉGULARISATION URBANISTIQUE à Bruxelles
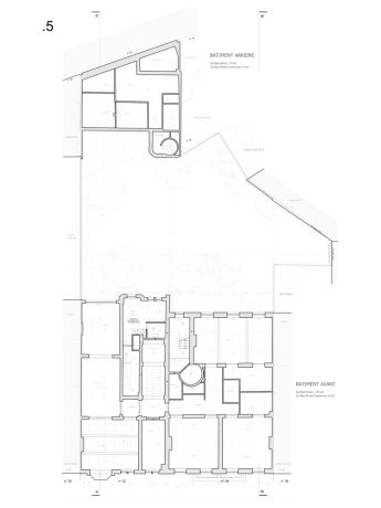
Projet: Rue de l’Association 32 & 34, 1000 Bruxelles
Commune: Ville de Bruxelles
Typologie: Habitation – Hôtellerie
Surface: 3.000 m²
Année: 2018
Description:
Ce projet concerne la régularisation d’un immeuble résidentiel existant, composé de 40 logements de type studio ou une chambre, ainsi que de 8 emplacements de stationnement situés dans la cour intérieure. La surface totale du bâtiment est de 2.295 m².
Les interventions prévues visent à améliorer la qualité des espaces, tant en termes d’usage que de fonctionnalité, tout en respectant les caractéristiques patrimoniales du bien.
Le projet inclut les travaux suivants :
- Réaménagement du sous-sol : Création de caves privatives (24), espaces communs, un local technique pour les déchets, et intégration de deux chambres au sein de logements situés au rez-de-chaussée.
- Accès différenciés : Séparation des accès piétons et véhicules et optimisation des logements en rez-de-chaussée pour améliorer leur confort.
- Transformation du premier étage : Regroupement de huit studios pour créer deux appartements de plus grande taille, tout en conservant les éléments architecturaux d’origine.
- Réaménagement du bâtiment arrière : Création de deux unités de logement, dont l’une conçue pour l’accessibilité PMR, avec de nouvelles fenêtres donnant sur l’impasse de la Révolution.
- Traitement de la cour intérieure : Verdurisation de l’espace tout en maintenant les 8 parkings existants, et ajout de 22 emplacements vélos.
- Régularisation des structures existantes : Les modifications de l’escalier et de l’ascenseur effectuées en 1988 sont désormais intégrées dans le dossier de régularisation.
Le projet reste en conformité avec les prescriptions du Règlement Régional d’Urbanisme (RRU) et du PRAS, tout en tenant compte du statut partiellement classé du bâtiment. Les interventions sont menées avec le plus grand soin pour préserver les éléments patrimoniaux.
L'intérieur d'îlot est également repensé pour offrir plus de verdure, avec l’introduction de surfaces de pleine terre et un aménagement paysager visant à renforcer la qualité environnementale pour les logements situés au rez-de-chaussée.
La nouvelle répartition des logements contribue à une mixité accrue, en remplaçant certains studios par des appartements plus spacieux allant jusqu’à trois chambres, avec des espaces communs pensés pour les résidents.
Les accès au bâtiment sont également repensés pour mieux gérer les flux piétons et automobiles, dans une logique de sécurité et de lisibilité des parcours.
Les interventions sur l’escalier et l’ascenseur, réalisées en 1988, sont officiellement régularisées dans le cadre de cette demande d’urbanisme.
En savoir plus
Pour découvrir d'autres projets de régularisation à Bruxelles, visitez le site de Galant Architectes.