Permis urbanisme Forest : Construction d'une lucarne en toiture d'un immeuble

lucarne-terrasse.jpg
2025
Bruxelles
Maxime SERVAIS

Description du problème urbanistique : construction d'une lucarne

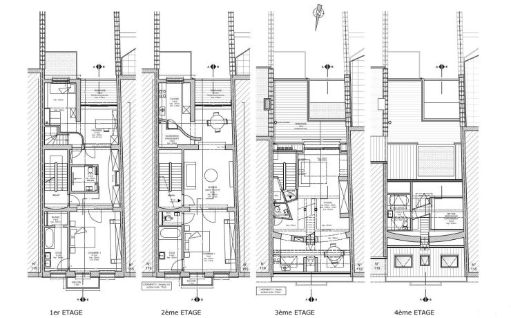
Les propriétaires de cet immeuble composé de 3 logements et situé à Forest nous ont contactés pour régulariser la construction d’une lucarne ainsi que l’aménagement d’une terrasse sur la toiture plate.

Solution apportée par notre bureau d’architectes : régularisation de la lucarne

Étant donné que l’immeuble figure à l’inventaire du patrimoine, les autorités urbanistiques sont particulièrement vigilantes quant aux impacts des irrégularités. Nous avons cependant réussi à démontrer que la construction de la lucarne et l’aménagement de la terrasse n’avaient pas d’incidence négative sur la qualité du patrimoine. Nous avons également souligné les avantages apportés par ces modifications pour le logement concerné, convainquant ainsi l’urbanisme de la nécessité et des bienfaits de ces aménagements.

Vous avez une infraction urbanistique à régulariser à Bruxelles ?

Que votre demande concerne une mise en conformité, une vente immobilière, une régularisation volontaire ou un nouveau projet d’aménagement, VMAR Architectes vous accompagne à chaque étape.

Contactez-nous via notre site internet vmar.be , par téléphone (0471 83 71 53) ou par mail : info@vmar.be