Régularisation urbanistique division immeuble

division-regularisation-urbanistique.jpg
2026
Bruxelles
Vincent Cordonnier SRL

Régularisation de division d’immeubles : VMAR architectes, votre spécialiste en urbanisme à Bruxelles

Chez VMAR architectes, nous accompagnons chaque année de nombreux propriétaires confrontés à une division d’un bien immobilier (maison, immeuble) en plusieurs logements, réalisée sans permis d’urbanisme. Cette infraction urbanistique est souvent découverte lors d’une vente immobilière ou d’une demande de renseignements urbanistiques.

L'infraction constatée peut également concerner l'ajout d'un logement au sein d'un immeuble existant (par exemple : aménagement d'un logement supplémentaire dans les combles, création d'un souplex, etc.).

Nous sommes spécialisés en régularisation urbanistiques pour la division d'immeuble et en nouveau projet de division dans toutes les communes de Bruxelles : Forest, Ixelles, Saint-Gilles, Uccle, Schaerbeek, etc.

Bonne nouvelle : une division ancienne n’est pas automatiquement irrégulière.

En effet, l’obligation de disposer d’un permis pour diviser un immeuble en plusieurs logements n'était pas toujours requis.

Au fil du temps, la liste des travaux intérieurs exonérés de permis a beaucoup évolué. Ainsi :

  • des transformations intérieures créant plusieurs logements ont pu être parfaitement régulières à l’époque où elles ont été réalisées ;

  • d’autres, non exemptées au moment des travaux, sont devenues régularisables par la suite grâce à l'évolution de la règlementation.

  • les autorités ne peuvent exiger la démolition d’ouvrages réalisés légalement selon la réglementation applicable à leur époque.

Toute la difficulté réside donc dans la vérification de la légalité historique de la division :

- déterminer quels actes et travaux ont été réalisés,
- identifier l’époque exacte des actes et travaux réalisés,
- analyser quelle réglementation était en vigueur à ce moment-là.

Un exercice souvent complexe, qui nécessite une recherche approfondie et une connaissance de l'évolution de la règlementation urbanistique dans les 19 communes bruxelloises. Chaque commune ayant également ses propres règlements urbanistiques tel que des RCU, PPAS, etc.

VMAR architectes est spécialisé dans la régularisation de division d’immeubles, même lorsque la situation est ancienne, floue ou juridiquement délicate.


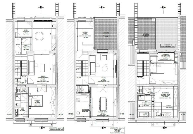
DIVISER UNE MAISON EN PLUSIEURS LOGEMENTS

VMAR architectes est également spécialisé dans la conception et l’obtention de permis d’urbanisme pour la division de maisons en plusieurs appartements. Nous concevons des aménagements intérieurs optimisés, conformes aux normes actuelles, tout en tenant compte des contraintes techniques et réglementaires. Le but étant de créer un projet répondant à la notion de bon aménagement des lieux.

Grâce à notre excellente maîtrise de la réglementation urbanistique (normes d’habitabilité, salubrité, incendie, etc.), nous accompagnons nos clients à chaque étape du projet, de l’analyse de faisabilité jusqu’à l’obtention du permis.

Notre expertise garantit des aménagements de logements qualitatifs, conformes et parfaitement adaptés aux exigences urbanistiques des différentes communes bruxelloise. Chacun de nos projets est également réalisé sur mesures en fonction des exigences de nos clients.

N'hésitez pas à nous contacter :

VMAR Architectes

0473 29 27 36

info@vmar.be