Changement d'affectation d'un commerce en souplex à Berchem-Sainte-Agathe

immeuble-ancien-commerce.jpg
2026
Bruxelles
Maxime SERVAIS

Description du problème urbanistique : changement d'affectation d'un commerce en logement

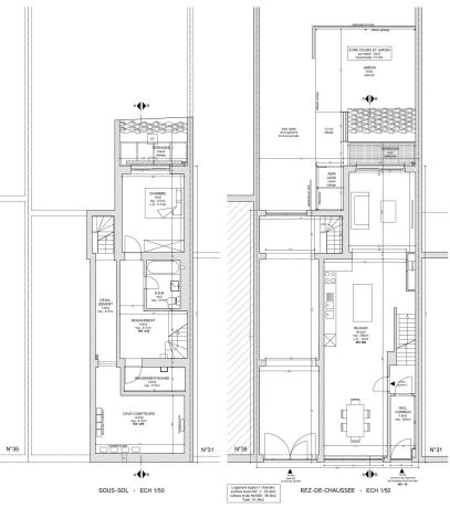
A Berchem-Sainte-Agathe, ce projet de régularisation concernait des travaux de transformation d’un commerce au rez-de-chaussée en un logement souplex réparti sur deux niveaux (rez-de-chaussée et sous-sol). Différentes modifications structurelles étaient à régulariser ainsi que le changement de répartition des communs de l’immeuble (une partie du sous-sol ayant été privatisée).

Solution apportée par notre bureau d’architecte : la régularisation du logement aménagé

Nous avons utilisé notre expertise pour obtenir la régularisation en démontrant que la transformation était bénéfique et intégrée de manière cohérente dans l’immeuble. La suppression des locaux communs d’un immeuble est toujours délicate à faire accepter, aussi bien à Berchem-Sainte-Agathe que dans d’autres communes comme Ixelles, Forest ou Saint-Gilles. Des arguments solides ont été présentés aux fonctionnaires communaux ainsi qu’au fonctionnaire délégué de la région, de manière à prouver que la nouvelle affectation répondait aux besoins actuels et que les dérogations au titre 2 du RRU pouvaient être accordées.

Vous avez une infraction urbanistique à régulariser à Bruxelles ?

Que votre demande concerne une mise en conformité, une vente immobilière, une régularisation volontaire ou un nouveau projet d’aménagement, VMAR Architectes vous accompagne à chaque étape.

Contactez-nous via notre site internet vmar.be , par téléphone (0471 83 71 53) ou par mail : info@vmar.be