Berchem-Sainte-Agathe -division-maison-sans autorisation

division-maison-infraction_2026-01-09-150904_toed.JPG
2026
Bruxelles
Maxime Servais srl

Vous avez reçu un procès-verbal pour infraction urbanistique concernant la division de votre maison en plusieurs logements ?

Cette situation est plus fréquente qu’on ne le pense à Bruxelles, notamment lorsque des divisions ou transformations ont été réalisées dans le passé, parfois à une époque où la réglementation était différente, voire inexistante.

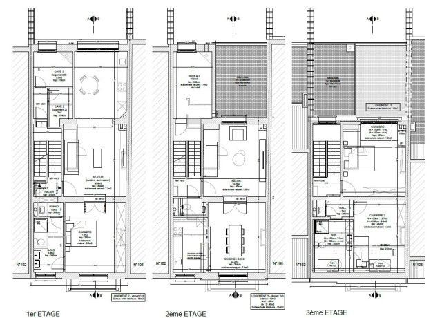
Chez VMAR architectes, nous sommes un bureau d’architectes spécialisé en régularisation urbanistique, et plus particulièrement dans les dossiers liés à la division de maisons en plusieurs logements, à l’augmentation du nombre de logements dans un immeuble existant ou à la modification de la répartition des logements.

Lorsqu’un client nous contacte suite à un PV d’infraction urbanistique, notre première mission est de poser une analyse rigoureuse et stratégique du dossier. Nous élaborons une défense urbanistique complète, basée notamment sur :

  • la recherche d’éléments de preuve attestant de l’existence ancienne de la division (archives, plans, documents, photos, historiques du bien) ;
  • l’analyse approfondie des réglementations urbanistiques en vigueur à l’époque des faits ;
  • l’évaluation des possibilités de régularisation par permis d’urbanisme, lorsque cela s’avère nécessaire.

Nous intervenons rapidement et prenons en charge l’ensemble des démarches auprès des services d’urbanisme : conception du projet, constitution du dossier de permis, échanges avec la commune et suivi administratif jusqu’à la décision finale.
Notre objectif est clair : sécuriser votre situation, réduire les risques et trouver la solution la plus adaptée à votre cas.

Nous accompagnons des propriétaires dans toutes les communes bruxelloises, notamment à Berchem-Sainte-Agathe, Ixelles, Forest et Schaerbeek, en tenant compte des pratiques communales spécifiques, des exigences du Règlement Régional d’Urbanisme (RRU) et des règlementations antérieures.

Ce qui nous anime au quotidien :
Rechercher la meilleure solution possible pour défendre vos intérêts et permettre la régularisation de votre bien dans les meilleures conditions. Chaque situation étant unique, nous privilégions une approche rigoureuse, proactive et transparente, afin de vous accompagner efficacement du premier échange jusqu’à l’aboutissement du dossier. Un doute, un Procès verbal reçu ou une vente immobilière bloquée ?


Vous avez une infraction urbanistique à régulariser à Bruxelles ?

Que votre demande concerne une mise en conformité, une vente immobilière, une régularisation volontaire ou un nouveau projet d’aménagement, VMAR Architectes vous accompagne à chaque étape.

Contactez-nous via notre site internet vmar.be , par téléphone (0471 83 71 53) ou par mail : info@vmar.be